石巻市針岡字六角
- NEW
- 売地
- 写真10枚以上
- 前面道路幅員6m以上
- 建築条件なし
価格700万円
現地外観写真 : 現地土地写真 (撮影日 : 2025年8月31日)
10回閲覧
0件お気に入り数
物件概要物件ID:98768
| 物件種目 | 売地 |
|---|---|
| 価格 | 700万円 |
| 所在地 | 宮城県石巻市針岡字六角 |
| 交通 | 石巻線 鹿又駅 バス22分 谷地 停歩40分 |
| その他交通 | -- |
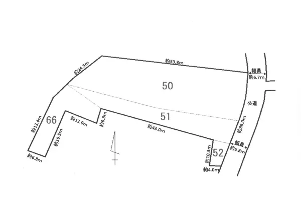
| 接道状況 | 一方道路 /東6.7m(公道)接面39.0m |
| 私道負担 | 無 |
| セットバック | 無 |
| 国土法届出 | 届出不要(否) |
| 都市計画 | 区域外 |
| 土地権利 | 所有権 |
| 用途地域 | 無指定 |
| 地目 | 宅地 |
| 現況 | 更地 |
| 建ぺい率/容積率 | 0% / 0% |
| 土地面積 | 1793.68m² |
| 建築条件 | 建築条件無 |
| 最適用途 | 住宅用地 |
| 引渡し可能時期 | 相談 |
| 取引態様 | 媒介 |
| 借地期間/地代 | - |
| 保証金または敷金 | - |
| その他費用 | - |
| その他制限 | - |
| 備考 | |
| 学校情報 | 石巻市立二俣小学校 石巻市立河北中学校 |
| 情報公開日 | 2025/10/25 |
| 次回更新予定日 | 2025/11/08 |
お支払いシミュレーション
シミュレーション結果
月々お支払い目安
0円
- ローン0円
- 管理費・修繕積立金0円
- その他費用0円
注意事項
※最初に表示される毎月のローン金額は、頭金 20%、ボーナス返済 1 回分を 20 万円、期間 35 年、金利 0.5%で計算しています。※ご購入には物件価格以外に、別途諸費用が必要となります。※実際の借り入れは、諸条件によりシミュレーション結果と異なります。※本シミュレーション結果は、目安としての提供を目的としており、実際の融資を保証するものではありません。※詳しくは担当者にお問い合わせください。
物件担当者より

物件担当
仙台営業所
吉田直広
担当者の吉田 直広です。最近料理にはまっております。マイホーム探しの中で、キッチン選びも重要ですよね。ぜひ、ご相談下さい。
担当店舗情報
仙台営業所
0120-742-322

| 所在地 | 〒980-0014仙台市青葉区本町2丁目15番1号(ルナール仙台7階) |
|---|---|
| 連絡先 | TEL0120-742-322FAX022-263-3118 |
| 営業エリア | 仙台市・名取市・多賀城市・岩沼市・東松島市・大崎市・富谷市・宮城郡・黒川郡 |
| 主な業務 | 売買仲介、買取 |
| 営業時間/定休日 | 9:00〜18:00/火曜日、水曜日、祝日 |
| 駐車場 | - |
特記事項・設備物件ID:98768
| 特記事項 | |
|---|---|
| 設備 |
周辺地図
宮城県石巻市針岡字六角



















