買いたい
売りたい
賃貸経営したい
不動産のお取引にかかわる大和ハウスリアルエステートの多彩なサービスメニューをご紹介します。
土地・戸建て・マンションなど不動産の購入ご相談はこちらへ
購入のご相談
Store search
物件種別:指定なし
都道府県:東京都
築年数:指定なし
駅まで徒歩:指定なし
1687件中1561件〜1580件を表示
価格6,480万円
土地面積/109.81㎡
価格4,180万円
土地面積/83.47㎡
価格5,280万円
土地面積/68.48㎡
価格9,980万円
建物面積/115.93㎡
地上/2階
価格3,880万円
建物面積/93.36㎡
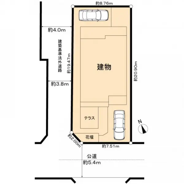
価格1億5,900万円
建物面積/125.84㎡
地上/4階
価格2億9,000万円
建物面積/169.43㎡
地上/3階
価格1億4,800万円
建物面積/96.79㎡
価格1億1,500万円
建物面積/118.25㎡
価格3,100万円
土地面積/95.89㎡
価格1億3,500万円
土地面積/29.88㎡
土地面積/161.00㎡
価格4,480万円
建物面積/68.44㎡
価格7,980万円
土地面積/68.69㎡
価格1億6,000万円
建物面積/145.56㎡
価格1億1,910万円
土地面積/60.00㎡
価格1億5,500万円
土地面積/124.44㎡
価格1億5,000万円
土地面積/214.87㎡
価格8,650万円
建物面積/96.04㎡
価格4,780万円
土地面積/109.30㎡